takeofficeなら掲載物件の仲介手数料は無料です

ネクスサイト蒲田ビル

住所 東京都大田区蒲田1-1-2他
交通 JR京浜東北線蒲田」 徒歩5分
竣工 2010年03月 構造 -
規模 地上6階 耐震基準 新耐震基準
床構造 フリーアクセス 空調設備 個別空調
天井高 2700mm 基準階面積 301.69坪(997.32m2)
コンセント容量 - 施工会社

最新の募集状況や類似物件については、
こちらにお問い合わせください。

NOW PRINTING

外観

  • NOW PRINTING

    エントランス

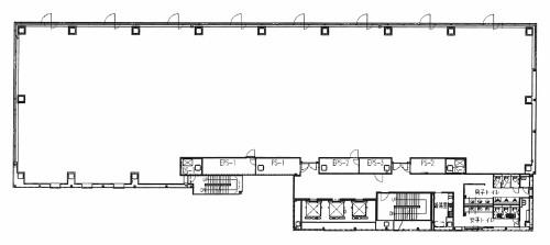
  • 基準階

    基準階

  • 1F

    1F

内見やお見積りなどの各種お問い合わせ

全物件
仲介手数料無料
仲介から
入居工事まで
ワンストップで対応
経験豊富なスタッフが
スピード感をもって
対応

周辺での似た条件の物件

非公開物件 多数あり!

お問い合わせフォーム