takeofficeなら掲載物件の仲介手数料は無料です

大成鋼機ビル

住所 東京都渋谷区広尾5-4-12
交通 東京メトロ日比谷線広尾」 徒歩1分
竣工 1965年01月 構造 SRC
規模 地上8階, 地下1階 耐震基準 旧耐震基準
床構造 フリーアクセス 45mm 空調設備 個別空調
天井高 2400mm 基準階面積 --
コンセント容量 - 施工会社

最新の募集状況や類似物件については、
こちらにお問い合わせください。

大成鋼機ビル 外観

外観

  • 大成鋼機ビル エントランス写真

    エントランス

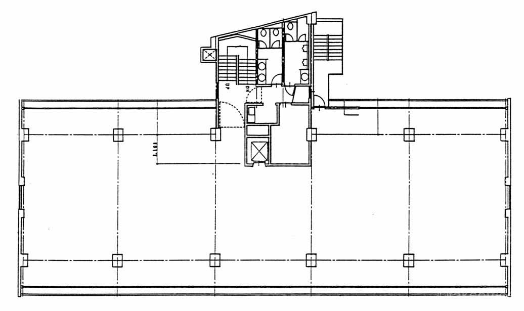
  • 基準階

    基準階

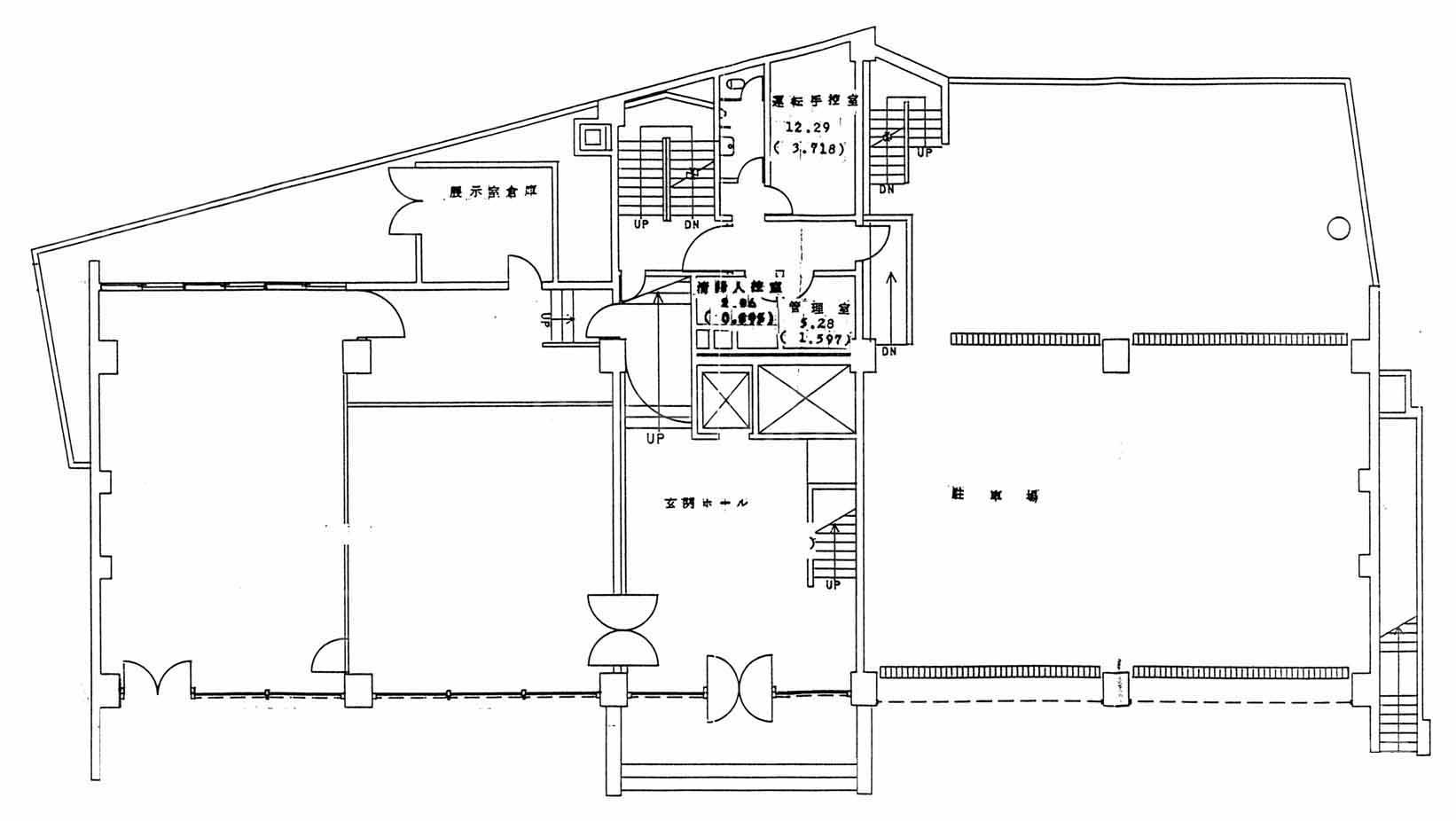
  • 1F

    1F

内見やお見積りなどの各種お問い合わせ

全物件
仲介手数料無料
仲介から
入居工事まで
ワンストップで対応
経験豊富なスタッフが
スピード感をもって
対応

周辺での似た条件の物件

非公開物件 多数あり!

お問い合わせフォーム