takeofficeなら掲載物件の仲介手数料は無料です

渋谷MMIビル(旧:根岸第1ビル)

住所 東京都渋谷区東2-23-8
交通 JR山手線渋谷」 徒歩8分
JR山手線恵比寿」 徒歩10分
竣工 1966年02月 構造 RC
規模 地上7階, 地下0階 耐震基準 旧耐震基準
床構造 - 空調設備 個別空調
天井高 - 基準階面積 --
コンセント容量 - 施工会社

最新の募集状況や類似物件については、
こちらにお問い合わせください。

渋谷MMIビル(旧:根岸第1ビル) 外観

外観

  • 渋谷MMIビル(旧:根岸第1ビル) エントランス写真

    エントランス

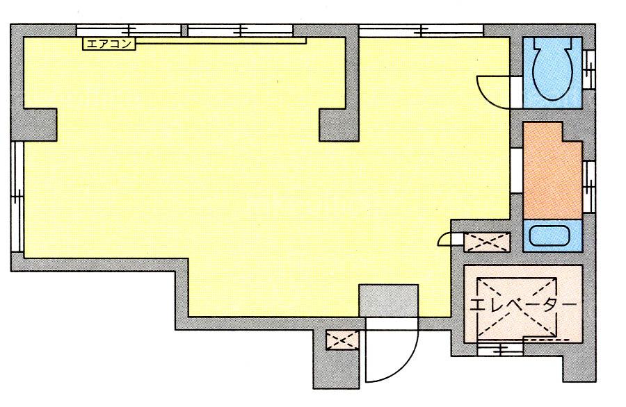
  • 2F

    2F

  • 3F

    3F

  • 4F

    4F

  • 5F

    5F

内見やお見積りなどの各種お問い合わせ

全物件
仲介手数料無料
仲介から
入居工事まで
ワンストップで対応
経験豊富なスタッフが
スピード感をもって
対応

周辺での似た条件の物件

非公開物件 多数あり!

お問い合わせフォーム