takeofficeなら掲載物件の仲介手数料は無料です

エフニッセイ恵比寿ビル

住所 東京都渋谷区東3-16-3
交通 JR山手線恵比寿」 徒歩5分
東京メトロ日比谷線恵比寿」 徒歩5分
東横線代官山」 徒歩8分
竣工 1994年09月 構造 SRC
規模 地上8階, 地下1階 耐震基準 新耐震基準
床構造 フリーアクセス 50mm 空調設備 ゾーン空調
天井高 2600mm 基準階面積 340.3坪(1124.97m2)
コンセント容量 - 施工会社

最新の募集状況や類似物件については、
こちらにお問い合わせください。

エフニッセイ恵比寿ビル 外観

外観

  • エフニッセイ恵比寿ビル エントランス写真

    エントランス

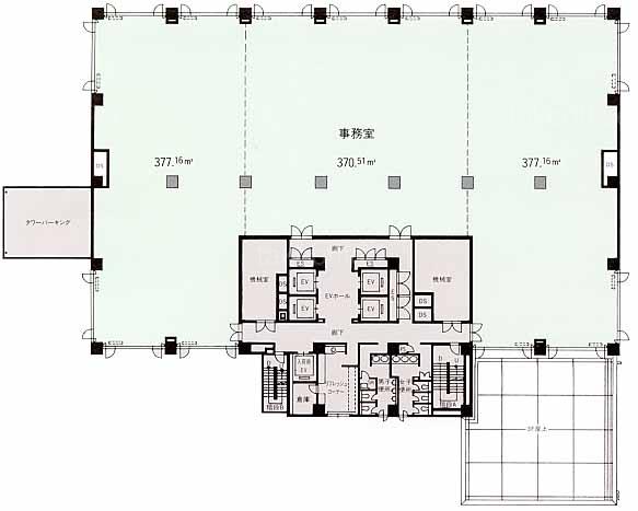
  • 基準階(3~8F)

    基準階(3~8F)

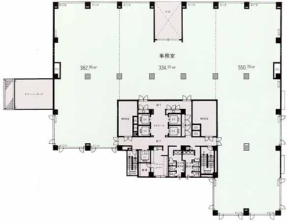
  • 1F

    1F

  • 2F

    2F

建物パンフレット

建物パンフレットは作成時点のものであり、また計画段階のものも含まれる為、実際とは異なる場合がございます。

内見やお見積りなどの各種お問い合わせ

全物件
仲介手数料無料
仲介から
入居工事まで
ワンストップで対応
経験豊富なスタッフが
スピード感をもって
対応

周辺での似た条件の物件

非公開物件 多数あり!

お問い合わせフォーム