takeofficeなら掲載物件の仲介手数料は無料です

第21荒井ビル

住所 東京都渋谷区恵比寿南1-20-6
交通 JR山手線恵比寿」 徒歩5分
東京メトロ日比谷線恵比寿」 徒歩5分
東横線代官山」 徒歩12分
竣工 1992年11月 構造 鉄骨造+RC
規模 地上6階, 地下1階 耐震基準 新耐震基準
床構造 フリーアクセス 50mm 空調設備 個別空調
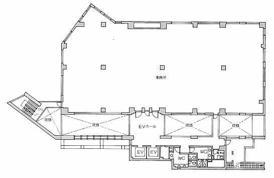
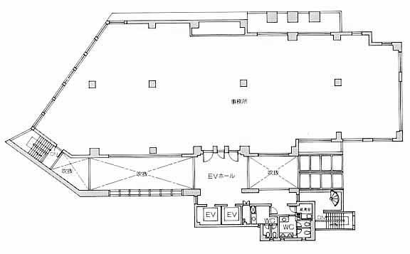
天井高 2650mm 基準階面積 190.4坪(629.42m2)
コンセント容量 - 施工会社 清水建設

最新の募集状況や類似物件については、
こちらにお問い合わせください。

第21荒井ビル 外観

外観

建物パンフレット

建物パンフレットは作成時点のものであり、また計画段階のものも含まれる為、実際とは異なる場合がございます。

内見やお見積りなどの各種お問い合わせ

全物件
仲介手数料無料
仲介から
入居工事まで
ワンストップで対応
経験豊富なスタッフが
スピード感をもって
対応

周辺での似た条件の物件

非公開物件 多数あり!

お問い合わせフォーム