takeofficeなら掲載物件の仲介手数料は無料です

青山山田ビル

住所 東京都渋谷区渋谷2-10-6
交通 JR山手線渋谷」 徒歩6分
東京メトロ銀座線渋谷」 徒歩7分
竣工 1994年 構造 -
規模 地上9階, 地下1階 耐震基準 新耐震基準
床構造 フリーアクセス 空調設備 個別空調
天井高 - 基準階面積 --
コンセント容量 - 施工会社

最新の募集状況や類似物件については、
こちらにお問い合わせください。

青山山田ビル 外観

外観

  • 青山山田ビル エントランス写真

    エントランス

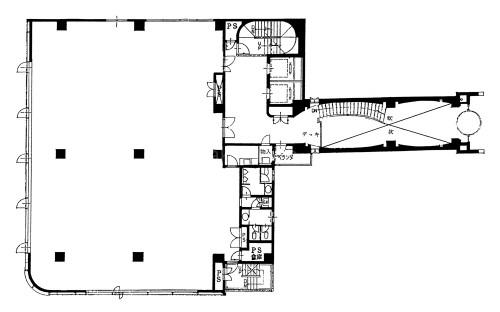
  • 2F

    2F

内見やお見積りなどの各種お問い合わせ

全物件
仲介手数料無料
仲介から
入居工事まで
ワンストップで対応
経験豊富なスタッフが
スピード感をもって
対応

周辺での似た条件の物件

非公開物件 多数あり!

お問い合わせフォーム