takeofficeなら掲載物件の仲介手数料は無料です

渋谷KKビル

住所 東京都渋谷区渋谷2-12-11
交通 JR山手線渋谷」 徒歩8分
東京メトロ銀座線渋谷」 徒歩8分
東横線渋谷」 徒歩8分
竣工 1973年 構造 鉄骨造
規模 地上10階, 地下1階 耐震基準 旧耐震基準
床構造 フリーアクセス 空調設備 個別空調
天井高 - 基準階面積 --
コンセント容量 - 施工会社

最新の募集状況や類似物件については、
こちらにお問い合わせください。

渋谷KKビル 外観

外観

  • 渋谷KKビル エントランス写真

    エントランス

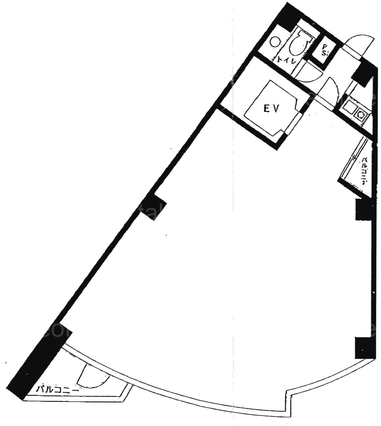
  • 基準階

    基準階

内見やお見積りなどの各種お問い合わせ

全物件
仲介手数料無料
仲介から
入居工事まで
ワンストップで対応
経験豊富なスタッフが
スピード感をもって
対応

周辺での似た条件の物件

非公開物件 多数あり!

お問い合わせフォーム