takeofficeなら掲載物件の仲介手数料は無料です

渋谷アイビスビル(A館)

住所 東京都渋谷区渋谷2-17-3
交通 JR山手線渋谷」 徒歩2分
東横線渋谷」 徒歩2分
東京メトロ半蔵門線渋谷」 徒歩3分
竣工 1961年 月 構造 SRC
規模 地上9階, 地下2階 耐震基準 旧耐震基準
床構造 フリーアクセス 空調設備 個別空調
天井高 2450mm 基準階面積 120坪(396m2)
コンセント容量 - 施工会社

最新の募集状況や類似物件については、
こちらにお問い合わせください。

渋谷アイビスビル(A館) 外観

外観

  • 渋谷アイビスビル(A館) エントランス写真

    エントランス

  • 基準階

    基準階

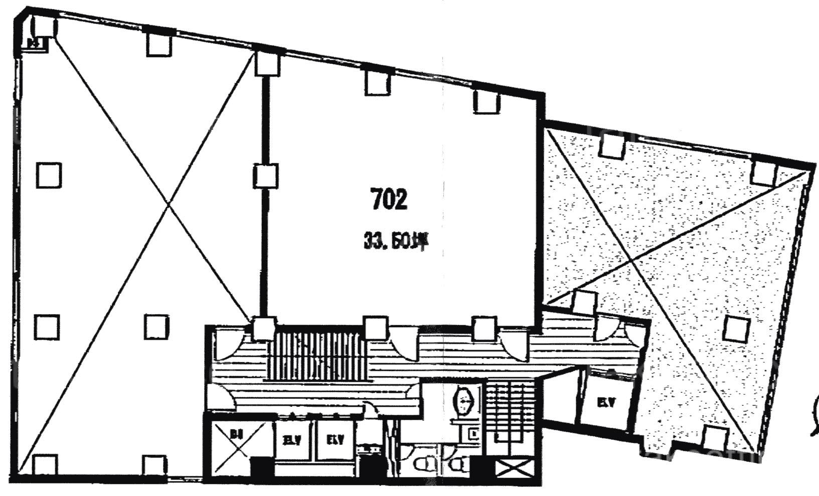
  • 7F

    7F

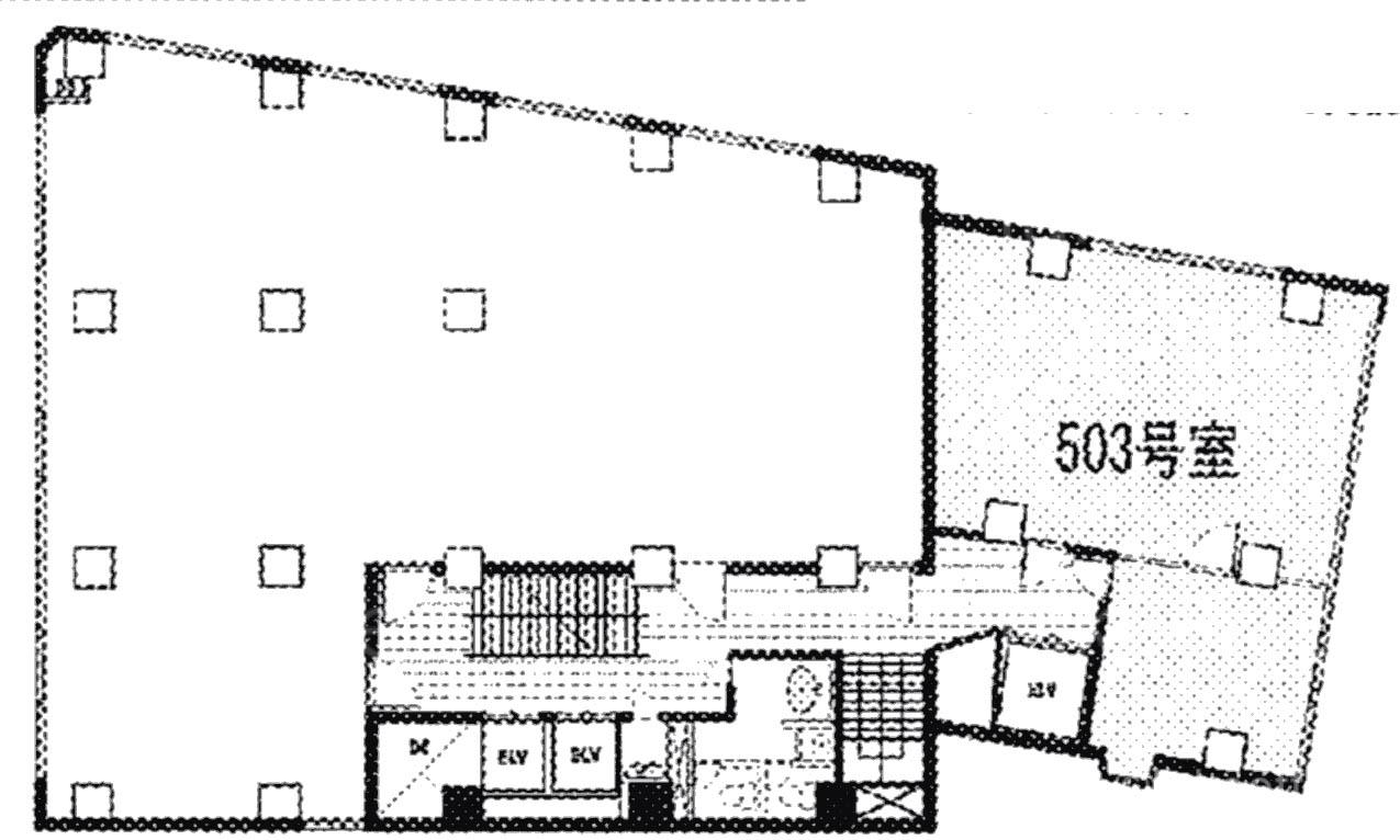
  • 5F

    5F

  • 8F

    8F

内見やお見積りなどの各種お問い合わせ

全物件
仲介手数料無料
仲介から
入居工事まで
ワンストップで対応
経験豊富なスタッフが
スピード感をもって
対応

周辺での似た条件の物件

非公開物件 多数あり!

お問い合わせフォーム