takeofficeなら掲載物件の仲介手数料は無料です

ビレッジ101

住所 東京都渋谷区桜丘町1-7
交通 JR山手線渋谷」 徒歩2分
井の頭線神泉」 徒歩11分
竣工 1972年05月 構造 -
規模 地上9階, 地下1階 耐震基準 旧耐震基準
床構造 - 空調設備 -
天井高 - 基準階面積 114坪(376m2)
コンセント容量 - 施工会社

最新の募集状況や類似物件については、
こちらにお問い合わせください。

ビレッジ101 外観

外観

  • NOW PRINTING

    エントランス

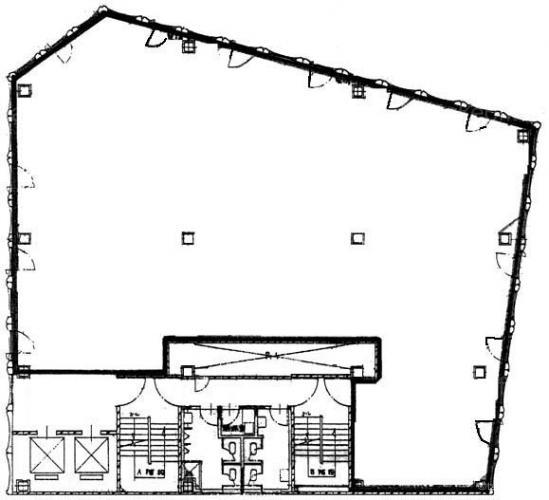
  • 基準階

    基準階

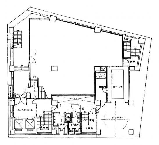
  • 1F

    1F

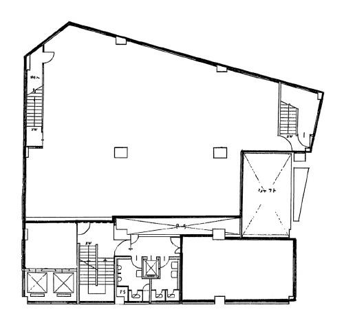
  • B1F

    B1F

内見やお見積りなどの各種お問い合わせ

全物件
仲介手数料無料
仲介から
入居工事まで
ワンストップで対応
経験豊富なスタッフが
スピード感をもって
対応

周辺での似た条件の物件

非公開物件 多数あり!

お問い合わせフォーム