takeofficeなら掲載物件の仲介手数料は無料です

第1カスヤビル

住所 東京都渋谷区桜丘町2-9
交通 JR山手線渋谷」 徒歩2分
竣工 1965年10月 構造 SRC
規模 地上8階, 地下2階 耐震基準 旧耐震基準
床構造 フリーアクセス 70mm 空調設備 個別空調
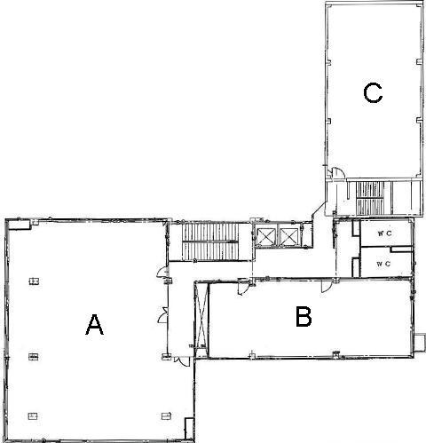
天井高 2430mm 基準階面積 132坪(436m2)
コンセント容量 - 施工会社

最新の募集状況や類似物件については、
こちらにお問い合わせください。

第1カスヤビル 外観

外観

  • 第1カスヤビル エントランス写真

    エントランス

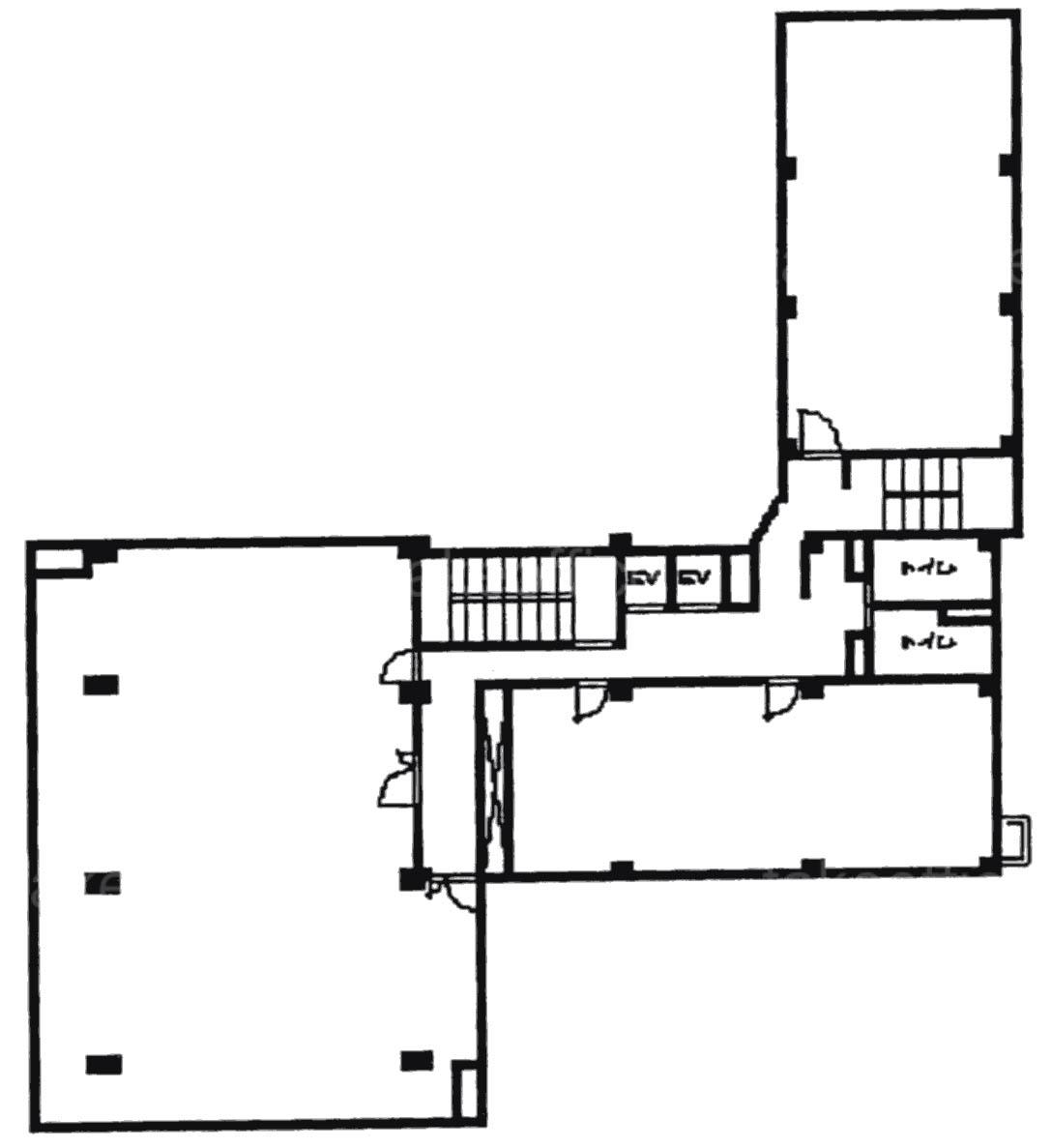
  • 8F

    8F

内見やお見積りなどの各種お問い合わせ

全物件
仲介手数料無料
仲介から
入居工事まで
ワンストップで対応
経験豊富なスタッフが
スピード感をもって
対応

周辺での似た条件の物件

非公開物件 多数あり!

お問い合わせフォーム