takeofficeなら掲載物件の仲介手数料は無料です

岡三桜丘ビル(南館)

住所 東京都渋谷区桜丘町31-7
交通 JR山手線渋谷」 徒歩5分
東京メトロ銀座線渋谷」 徒歩5分
東横線渋谷」 徒歩5分
竣工 1979年03月 構造 SRC
規模 地上11階, 地下1階 耐震基準 旧耐震基準
床構造 - 空調設備 個別空調
天井高 2300mm 基準階面積 --
コンセント容量 - 施工会社

最新の募集状況や類似物件については、
こちらにお問い合わせください。

岡三桜丘ビル(南館) 外観

外観

  • 岡三桜丘ビル(南館) エントランス写真

    エントランス

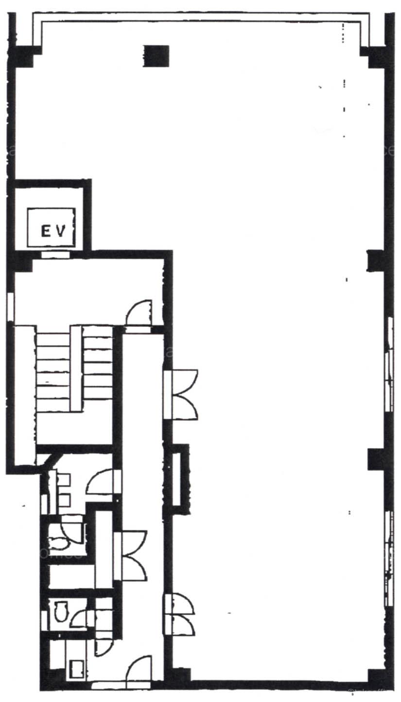
  • 6F

    6F

  • 501号室

    501号室

  • 801号室

    801号室

  • 403号室

    403号室

内見やお見積りなどの各種お問い合わせ

全物件
仲介手数料無料
仲介から
入居工事まで
ワンストップで対応
経験豊富なスタッフが
スピード感をもって
対応

周辺での似た条件の物件

非公開物件 多数あり!

お問い合わせフォーム