takeofficeなら掲載物件の仲介手数料は無料です

エムズ原宿

住所 東京都渋谷区神宮前6-27-8
交通 東京メトロ千代田線明治神宮前」 徒歩4分
JR山手線原宿」 徒歩7分
東京メトロ半蔵門線表参道」 徒歩11分
竣工 1970年01月 構造 鉄骨造+RC
規模 地上5階, 地下1階 耐震基準 旧耐震基準
床構造 - 空調設備 -
天井高 3400mm 基準階面積 --
コンセント容量 - 施工会社

最新の募集状況や類似物件については、
こちらにお問い合わせください。

エムズ原宿 外観

外観

  • エムズ原宿 エントランス写真

    エントランス

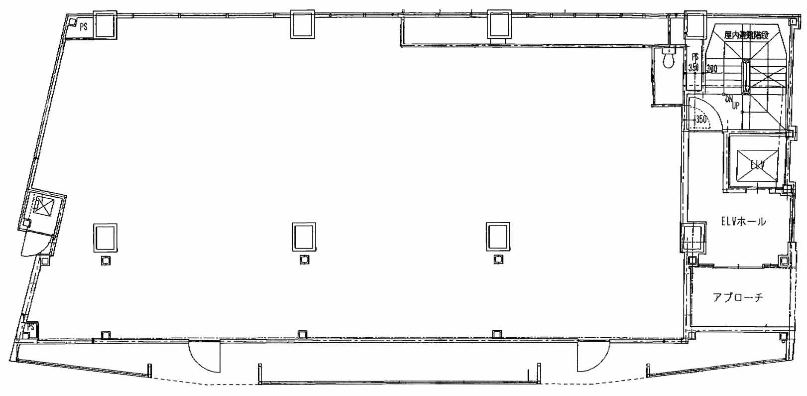
  • 基準階(4~5F)

    基準階(4~5F)

  • 1F

    1F

内見やお見積りなどの各種お問い合わせ

全物件
仲介手数料無料
仲介から
入居工事まで
ワンストップで対応
経験豊富なスタッフが
スピード感をもって
対応

周辺での似た条件の物件

非公開物件 多数あり!

お問い合わせフォーム