takeofficeなら掲載物件の仲介手数料は無料です

カクセンプレイス

住所 東京都渋谷区神宮前3-38-5
交通 東京メトロ銀座線外苑前」 徒歩7分
東京メトロ半蔵門線表参道」 徒歩11分
都営大江戸線国立競技場」 徒歩13分
竣工 1987年 月 構造 RC
規模 地上4階, 地下1階 耐震基準 新耐震基準
床構造 フリーアクセス 50mm 空調設備 個別空調
天井高 2400mm 基準階面積 --
コンセント容量 - 施工会社

最新の募集状況や類似物件については、
こちらにお問い合わせください。

カクセンプレイス 外観

外観

  • カクセンプレイス エントランス写真

    エントランス

  • 2F

    2F

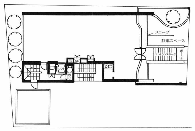
  • 1F

    1F

  • B1F

    B1F

内見やお見積りなどの各種お問い合わせ

全物件
仲介手数料無料
仲介から
入居工事まで
ワンストップで対応
経験豊富なスタッフが
スピード感をもって
対応

周辺での似た条件の物件

非公開物件 多数あり!

お問い合わせフォーム