takeofficeなら掲載物件の仲介手数料は無料です

クレオ原宿旧本社ビル

住所 東京都渋谷区神宮前3-27-19
交通 東京メトロ千代田線明治神宮前」 徒歩7分
JR山手線原宿」 徒歩10分
東京メトロ銀座線外苑前」 徒歩12分
竣工 1971年08月 構造 RC
規模 地上6階, 地下1階 耐震基準 新耐震基準
床構造 フリーアクセス 58mm 空調設備 個別空調
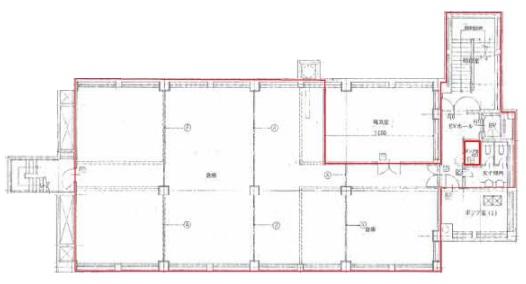
天井高 2650mm 基準階面積 122.69坪(405.59m2)
コンセント容量 35VA/m2 施工会社

最新の募集状況や類似物件については、
こちらにお問い合わせください。

クレオ原宿旧本社ビル 外観

外観

内見やお見積りなどの各種お問い合わせ

全物件
仲介手数料無料
仲介から
入居工事まで
ワンストップで対応
経験豊富なスタッフが
スピード感をもって
対応

周辺での似た条件の物件

非公開物件 多数あり!

お問い合わせフォーム