takeofficeなら掲載物件の仲介手数料は無料です

アイアンドイー渋谷ビル(旧:都民興業渋谷ビル)

住所 東京都渋谷区宇田川町33-7
交通 JR山手線渋谷」 徒歩5分
竣工 1970年11月 構造 SRC
規模 地上7階, 地下2階 耐震基準 耐震診断書有
床構造 フリーアクセス 空調設備 個別空調
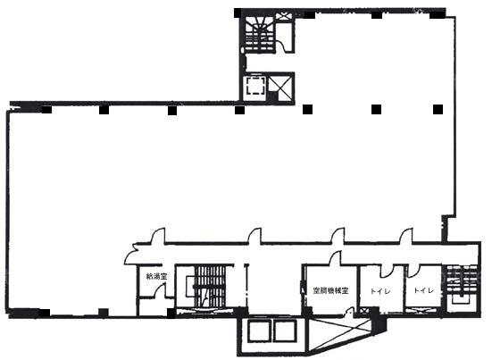
天井高 2400mm 基準階面積 130.45坪(431.24m2)
コンセント容量 - 施工会社

最新の募集状況や類似物件については、
こちらにお問い合わせください。

アイアンドイー渋谷ビル(旧:都民興業渋谷ビル) 外観

外観

  • NOW PRINTING

    エントランス

  • 基準階

    基準階

  • 3F

    3F

内見やお見積りなどの各種お問い合わせ

全物件
仲介手数料無料
仲介から
入居工事まで
ワンストップで対応
経験豊富なスタッフが
スピード感をもって
対応

周辺での似た条件の物件

非公開物件 多数あり!

お問い合わせフォーム