takeofficeなら掲載物件の仲介手数料は無料です

渋谷コロンバンビル

住所 東京都渋谷区神南1-6-12
交通 JR山手線渋谷」 徒歩8分
東京メトロ半蔵門線渋谷」 徒歩8分
JR山手線原宿」 徒歩9分
竣工 1993年09月 構造 RC
規模 地上6階, 地下1階 耐震基準 新耐震基準
床構造 フリーアクセス 空調設備 個別空調
天井高 2600mm 基準階面積 132.2坪(437.02m2)
コンセント容量 - 施工会社

最新の募集状況や類似物件については、
こちらにお問い合わせください。

渋谷コロンバンビル 外観

外観

  • 渋谷コロンバンビル エントランス写真

    エントランス

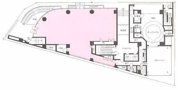
  • 基準階(3~5F)

    基準階(3~5F)

  • 1F

    1F

  • 2F

    2F

  • B1F

    B1F

内見やお見積りなどの各種お問い合わせ

全物件
仲介手数料無料
仲介から
入居工事まで
ワンストップで対応
経験豊富なスタッフが
スピード感をもって
対応

周辺での似た条件の物件

非公開物件 多数あり!

お問い合わせフォーム