takeofficeなら掲載物件の仲介手数料は無料です

FHONTIS

住所 東京都渋谷区道玄坂2-23-12
交通 JR山手線渋谷」 徒歩8分
東京メトロ半蔵門線渋谷」 徒歩8分
東横線渋谷」 徒歩8分
竣工 1995年01月 構造 SRC
規模 地上8階, 地下2階 耐震基準 新耐震基準
床構造 - 空調設備 個別空調
天井高 2500mm 基準階面積 133.05坪(439.82m2)
コンセント容量 - 施工会社

最新の募集状況や類似物件については、
こちらにお問い合わせください。

FHONTIS 外観

外観

  • NOW PRINTING

    エントランス

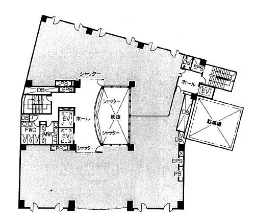
  • 3F

    3F

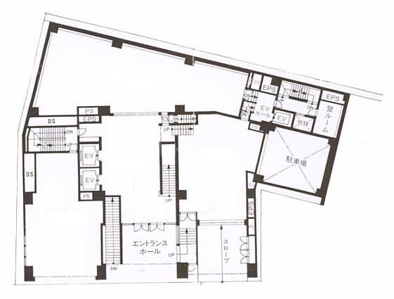
  • 1F

    1F

  • 2F

    2F

  • 4F

    4F

  • 5F

    5F

  • 6F

    6F

  • 7F

    7F

  • 8F

    8F

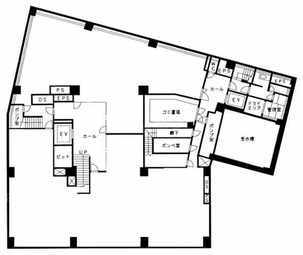
  • B1F

    B1F

建物パンフレット

建物パンフレットは作成時点のものであり、また計画段階のものも含まれる為、実際とは異なる場合がございます。

内見やお見積りなどの各種お問い合わせ

全物件
仲介手数料無料
仲介から
入居工事まで
ワンストップで対応
経験豊富なスタッフが
スピード感をもって
対応

周辺での似た条件の物件

非公開物件 多数あり!

お問い合わせフォーム