takeofficeなら掲載物件の仲介手数料は無料です

MC渋谷

住所 東京都渋谷区円山町10-18
交通 井の頭線神泉」 徒歩4分
JR山手線渋谷」 徒歩8分
竣工 1997年 月 構造 SRC
規模 地上11階, 地下2階 耐震基準 新耐震基準
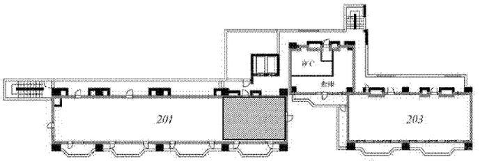
床構造 - 空調設備 個別空調
天井高 - 基準階面積 --
コンセント容量 - 施工会社

最新の募集状況や類似物件については、
こちらにお問い合わせください。

MC渋谷 外観

外観

  • NOW PRINTING

    エントランス

内見やお見積りなどの各種お問い合わせ

全物件
仲介手数料無料
仲介から
入居工事まで
ワンストップで対応
経験豊富なスタッフが
スピード感をもって
対応

周辺での似た条件の物件

非公開物件 多数あり!

お問い合わせフォーム