takeofficeなら掲載物件の仲介手数料は無料です

久保ビル

住所 東京都渋谷区代々木2-9-2
交通 JR山手線新宿」 徒歩1分
都営新宿線新宿」 徒歩1分
京王線新宿」 徒歩1分
竣工 1977年07月 構造 SRC
規模 地上8階, 地下2階 耐震基準 新耐震基準
床構造 - 空調設備 -
天井高 - 基準階面積 174.85坪(578.02m2)
コンセント容量 - 施工会社

最新の募集状況や類似物件については、
こちらにお問い合わせください。

久保ビル 外観

外観

  • 久保ビル エントランス写真

    エントランス

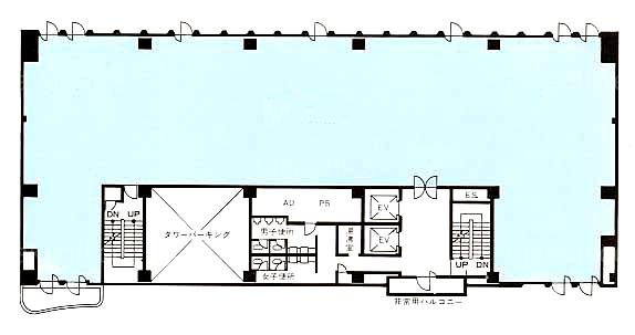
  • 基準階(2~7F)

    基準階(2~7F)

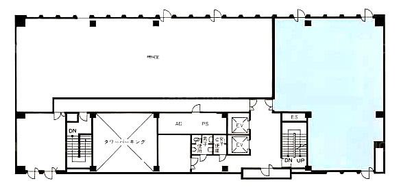
  • 1F

    1F

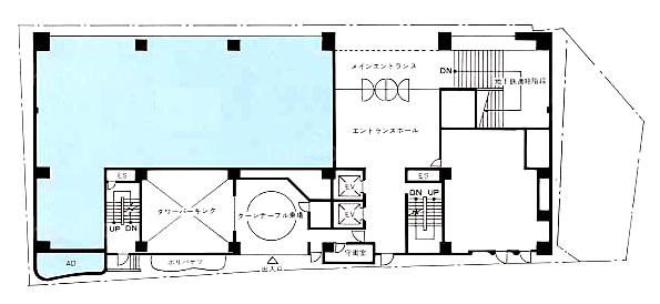
  • 8F

    8F

内見やお見積りなどの各種お問い合わせ

全物件
仲介手数料無料
仲介から
入居工事まで
ワンストップで対応
経験豊富なスタッフが
スピード感をもって
対応

周辺での似た条件の物件

非公開物件 多数あり!

お問い合わせフォーム