takeofficeなら掲載物件の仲介手数料は無料です

山葉ビル(メディカルセンター)

住所 東京都渋谷区代々木2-16-7
交通 JR山手線新宿」 徒歩7分
小田急線南新宿」 徒歩7分
都営大江戸線都庁前」 徒歩8分
竣工 1974年10月 構造 -
規模 地上7階, 地下1階 耐震基準 旧耐震基準
床構造 - 空調設備 個別空調
天井高 - 基準階面積 --
コンセント容量 - 施工会社

最新の募集状況や類似物件については、
こちらにお問い合わせください。

NOW PRINTING

外観

  • NOW PRINTING

    エントランス

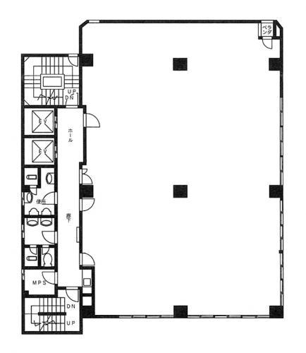
  • 3F

    3F

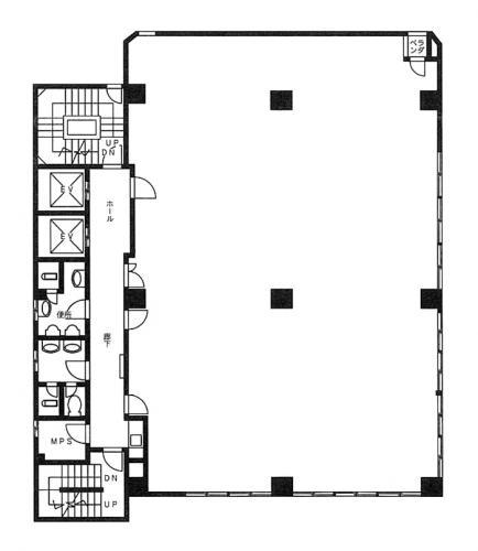
  • 7F

    7F

内見やお見積りなどの各種お問い合わせ

全物件
仲介手数料無料
仲介から
入居工事まで
ワンストップで対応
経験豊富なスタッフが
スピード感をもって
対応

周辺での似た条件の物件

非公開物件 多数あり!

お問い合わせフォーム