takeofficeなら掲載物件の仲介手数料は無料です

渋谷ビル一棟貸

住所 東京都渋谷区初台2-9-5
交通 京王線初台」 徒歩9分
小田急線代々木八幡」 徒歩10分
竣工 1992年01月 構造 鉄骨造
規模 地上5階, 地下2階 耐震基準 -
床構造 - 空調設備 -
天井高 - 基準階面積 --
コンセント容量 - 施工会社

最新の募集状況や類似物件については、
こちらにお問い合わせください。

渋谷ビル一棟貸 外観

外観

  • 渋谷ビル一棟貸 エントランス写真

    エントランス

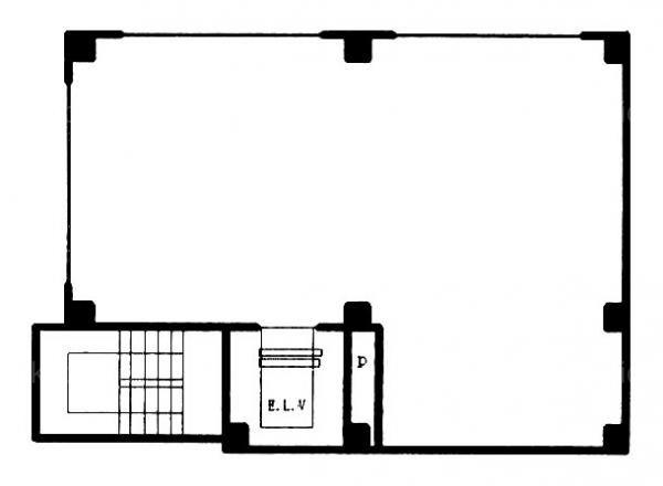
  • 2F

    2F

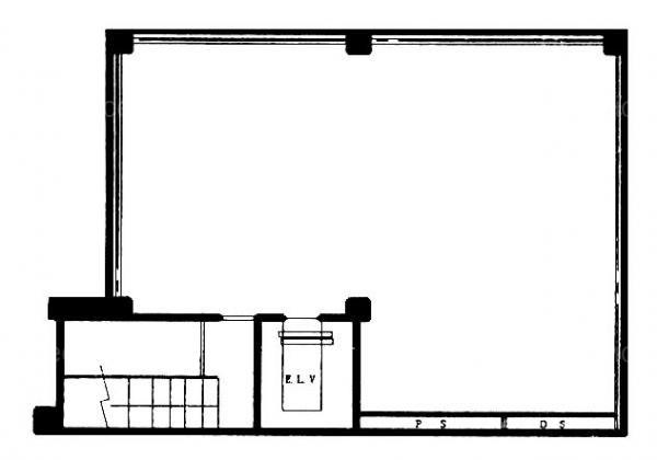
  • 1F

    1F

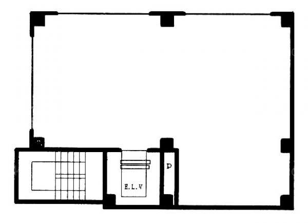
  • 3F

    3F

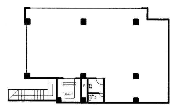
  • 4F

    4F

  • 5F

    5F

  • B1F

    B1F

  • B2F

    B2F

内見やお見積りなどの各種お問い合わせ

全物件
仲介手数料無料
仲介から
入居工事まで
ワンストップで対応
経験豊富なスタッフが
スピード感をもって
対応

周辺での似た条件の物件

非公開物件 多数あり!

お問い合わせフォーム