takeofficeなら掲載物件の仲介手数料は無料です

TSK笹塚ビル

住所 東京都渋谷区笹塚2-19-2
交通 京王線笹塚」 徒歩4分
竣工 1988年04月 構造 SRC
規模 地上11階, 地下1階 耐震基準 新耐震基準
床構造 - 空調設備 個別空調
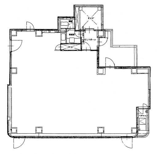
天井高 2450mm 基準階面積 23.76坪(78.55m2)
コンセント容量 - 施工会社

最新の募集状況や類似物件については、
こちらにお問い合わせください。

NOW PRINTING

外観

  • NOW PRINTING

    エントランス

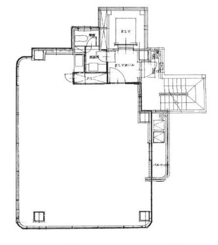
  • 基準階(5~11F)

    基準階(5~11F)

  • 1F

    1F

  • 2F

    2F

  • 3F

    3F

  • 4F

    4F

内見やお見積りなどの各種お問い合わせ

全物件
仲介手数料無料
仲介から
入居工事まで
ワンストップで対応
経験豊富なスタッフが
スピード感をもって
対応

周辺での似た条件の物件

非公開物件 多数あり!

お問い合わせフォーム