takeofficeなら掲載物件の仲介手数料は無料です

MK幡ヶ谷笹塚ビル(旧合建東京ビル)

住所 東京都渋谷区幡ヶ谷3-80-10
交通 京王線笹塚」 徒歩9分
竣工 1995年 月 構造 SRC
規模 地上6階, 地下1階 耐震基準 -
床構造 - 空調設備 個別空調
天井高 - 基準階面積 --
コンセント容量 - 施工会社

最新の募集状況や類似物件については、
こちらにお問い合わせください。

MK幡ヶ谷笹塚ビル(旧合建東京ビル) 外観

外観

  • MK幡ヶ谷笹塚ビル(旧合建東京ビル) エントランス写真

    エントランス

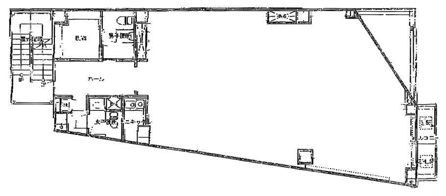
  • 基準階(3~4F)

    基準階(3~4F)

  • 5~6F

    5~6F

内見やお見積りなどの各種お問い合わせ

全物件
仲介手数料無料
仲介から
入居工事まで
ワンストップで対応
経験豊富なスタッフが
スピード感をもって
対応

周辺での似た条件の物件

非公開物件 多数あり!

お問い合わせフォーム