takeofficeなら掲載物件の仲介手数料は無料です

大塚プラザビル

住所 東京都豊島区北大塚2-1-1
交通 JR山手線大塚」 徒歩1分
都電荒川線大塚駅前」 徒歩2分
竣工 1973年 月 構造 RC
規模 地上7階, 地下1階 耐震基準 旧耐震基準
床構造 - 空調設備 個別空調
天井高 2450mm 基準階面積 57.34坪(189.54m2)
コンセント容量 - 施工会社

最新の募集状況や類似物件については、
こちらにお問い合わせください。

NOW PRINTING

外観

  • NOW PRINTING

    エントランス

  • 3F

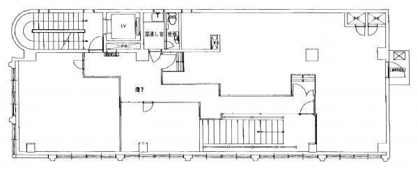
    3F

  • 2F

    2F

内見やお見積りなどの各種お問い合わせ

全物件
仲介手数料無料
仲介から
入居工事まで
ワンストップで対応
経験豊富なスタッフが
スピード感をもって
対応

周辺での似た条件の物件

非公開物件 多数あり!

お問い合わせフォーム