takeofficeなら掲載物件の仲介手数料は無料です

スエル池袋

住所 東京都豊島区東池袋1-34-2
交通 JR山手線池袋」 徒歩6分
竣工 1973年03月 構造 SRC
規模 地上9階, 地下1階 耐震基準 新耐震基準
床構造 フリーアクセス 40mm 空調設備 個別空調
天井高 2500mm 基準階面積 58.98坪(194.98m2)
コンセント容量 45VA/m2 施工会社 大成建設

最新の募集状況や類似物件については、
こちらにお問い合わせください。

スエル池袋 外観

外観

  • スエル池袋 エントランス写真

    エントランス

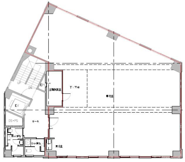
  • 基準階(5~8F)

    基準階(5~8F)

  • 2F

    2F

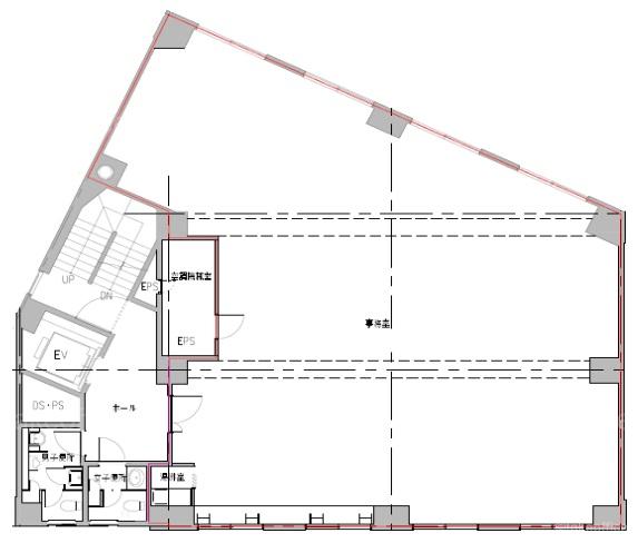
  • 4F

    4F

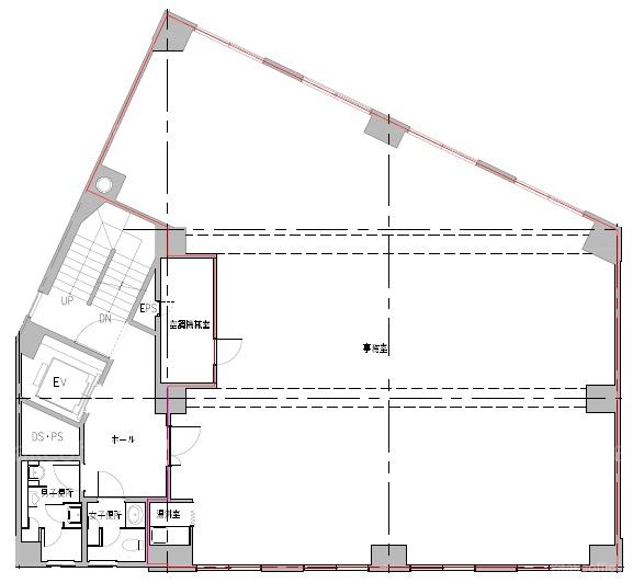
  • 9F

    9F

内見やお見積りなどの各種お問い合わせ

全物件
仲介手数料無料
仲介から
入居工事まで
ワンストップで対応
経験豊富なスタッフが
スピード感をもって
対応

周辺での似た条件の物件

非公開物件 多数あり!

お問い合わせフォーム