takeofficeなら掲載物件の仲介手数料は無料です

マルヤス機械ビル

住所 東京都豊島区東池袋2-13-14
交通 都電荒川線向原」 徒歩3分
JR山手線大塚」 徒歩5分
都電荒川線大塚駅前」 徒歩6分
竣工 1987年03月 構造 SRC
規模 地上8階 耐震基準 新耐震基準
床構造 3WAY 空調設備 個別空調
天井高 2500mm 基準階面積 85.36坪(282.18m2)
コンセント容量 - 施工会社

最新の募集状況や類似物件については、
こちらにお問い合わせください。

マルヤス機械ビル 外観

外観

  • マルヤス機械ビル エントランス写真

    エントランス

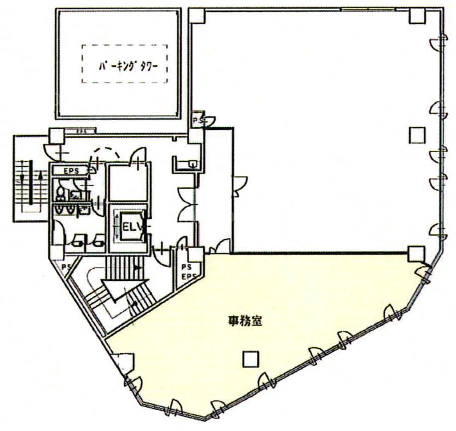
  • 4F

    4F

建物パンフレット

建物パンフレットは作成時点のものであり、また計画段階のものも含まれる為、実際とは異なる場合がございます。

内見やお見積りなどの各種お問い合わせ

全物件
仲介手数料無料
仲介から
入居工事まで
ワンストップで対応
経験豊富なスタッフが
スピード感をもって
対応

周辺での似た条件の物件

非公開物件 多数あり!

お問い合わせフォーム