takeofficeなら掲載物件の仲介手数料は無料です

和泉屋ビルディング

住所 東京都豊島区南池袋1-13-21
交通 JR山手線池袋」 徒歩6分
東京メトロ丸ノ内線池袋」 徒歩6分
池袋線池袋」 徒歩6分
竣工 1963年10月 構造 SRC
規模 地上10階, 地下1階 耐震基準 旧耐震基準
床構造 - 空調設備 -
天井高 - 基準階面積 78坪(260m2)
コンセント容量 - 施工会社

最新の募集状況や類似物件については、
こちらにお問い合わせください。

和泉屋ビルディング 外観

外観

  • NOW PRINTING

    エントランス

  • 1F

    1F

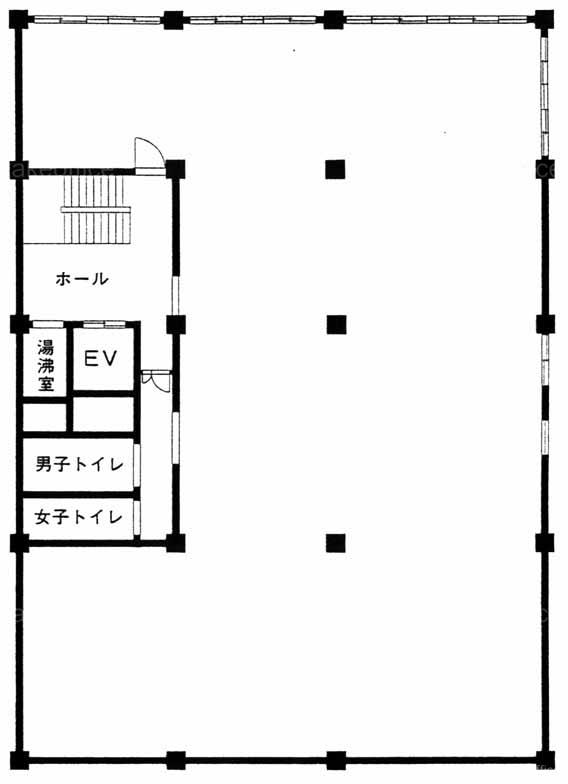
  • 2F

    2F

内見やお見積りなどの各種お問い合わせ

全物件
仲介手数料無料
仲介から
入居工事まで
ワンストップで対応
経験豊富なスタッフが
スピード感をもって
対応

周辺での似た条件の物件

非公開物件 多数あり!

お問い合わせフォーム