takeofficeなら掲載物件の仲介手数料は無料です

I&Kビル

住所 東京都豊島区南池袋1-18-17
交通 JR山手線池袋」 徒歩1分
東京メトロ丸ノ内線池袋」 徒歩1分
池袋線池袋」 徒歩1分
竣工 1999年07月 構造 鉄骨造
規模 地上10階, 地下0階 耐震基準 新耐震基準
床構造 - 空調設備 個別空調
天井高 - 基準階面積 --
コンセント容量 - 施工会社

最新の募集状況や類似物件については、
こちらにお問い合わせください。

I&Kビル 外観

外観

  • NOW PRINTING

    エントランス

  • 基準階

    基準階

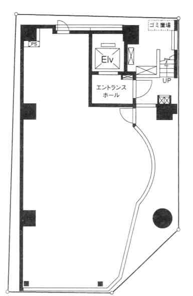
  • 1F

    1F

内見やお見積りなどの各種お問い合わせ

全物件
仲介手数料無料
仲介から
入居工事まで
ワンストップで対応
経験豊富なスタッフが
スピード感をもって
対応

周辺での似た条件の物件

非公開物件 多数あり!

お問い合わせフォーム