takeofficeなら掲載物件の仲介手数料は無料です

池袋パークサイドビル

住所 東京都豊島区南池袋2-23-2
交通 JR山手線池袋」 徒歩7分
東京メトロ丸ノ内線池袋」 徒歩7分
池袋線池袋」 徒歩7分
竣工 1988年04月 構造 RC
規模 地上6階 耐震基準 新耐震基準
床構造 - 空調設備 個別空調
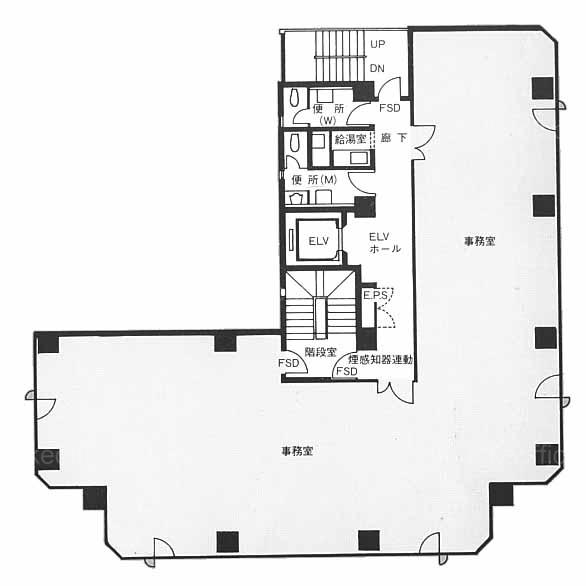
天井高 2450mm 基準階面積 56.22坪(185.85m2)
コンセント容量 60VA/m2 施工会社

最新の募集状況や類似物件については、
こちらにお問い合わせください。

池袋パークサイドビル 外観

外観

内見やお見積りなどの各種お問い合わせ

全物件
仲介手数料無料
仲介から
入居工事まで
ワンストップで対応
経験豊富なスタッフが
スピード感をもって
対応

周辺での似た条件の物件

非公開物件 多数あり!

お問い合わせフォーム