takeofficeなら掲載物件の仲介手数料は無料です

KHK池袋ビル

住所 東京都豊島区南池袋2-28-13
交通 JR山手線池袋」 徒歩4分
東京メトロ有楽町線東池袋」 徒歩5分
竣工 1983年11月 構造 SRC
規模 地上8階, 地下2階 耐震基準 新耐震基準
床構造 フリーアクセス 空調設備 個別空調
天井高 2500mm 基準階面積 94.87坪(313.62m2)
コンセント容量 - 施工会社

最新の募集状況や類似物件については、
こちらにお問い合わせください。

KHK池袋ビル 外観

外観

  • KHK池袋ビル エントランス写真

    エントランス

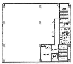
  • 3F

    3F

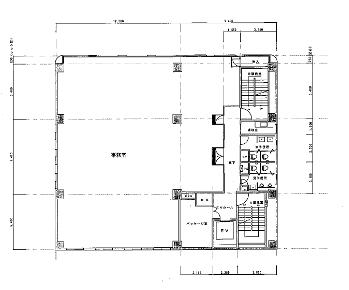
  • 4F

    4F

内見やお見積りなどの各種お問い合わせ

全物件
仲介手数料無料
仲介から
入居工事まで
ワンストップで対応
経験豊富なスタッフが
スピード感をもって
対応

周辺での似た条件の物件

非公開物件 多数あり!

お問い合わせフォーム