takeofficeなら掲載物件の仲介手数料は無料です

損保ジャパン日本興亜南池袋ビル

住所 東京都豊島区南池袋2-29-9
交通 東京メトロ有楽町線東池袋」 徒歩4分
JR山手線池袋」 徒歩6分
都電荒川線雑司ヶ谷」 徒歩8分
竣工 1987年10月 構造 SRC
規模 地上10階, 地下0階 耐震基準 新耐震基準
床構造 フリーアクセス 50mm 空調設備 個別空調
天井高 2450mm 基準階面積 59.11坪(195.4m2)
コンセント容量 - 施工会社

最新の募集状況や類似物件については、
こちらにお問い合わせください。

損保ジャパン日本興亜南池袋ビル 外観

外観

  • NOW PRINTING

    エントランス

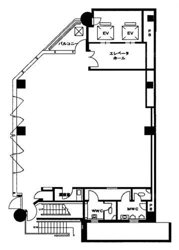
  • 4F

    4F

  • 1F

    1F

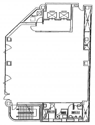
  • 8F

    8F

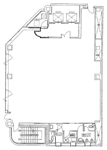
  • 10F

    10F

内見やお見積りなどの各種お問い合わせ

全物件
仲介手数料無料
仲介から
入居工事まで
ワンストップで対応
経験豊富なスタッフが
スピード感をもって
対応

周辺での似た条件の物件

非公開物件 多数あり!

お問い合わせフォーム