takeofficeなら掲載物件の仲介手数料は無料です

サイテックビル

住所 東京都豊島区高田3-5-13
交通 JR山手線高田馬場」 徒歩6分
都電荒川線学習院下」 徒歩6分
都電荒川線面影橋」 徒歩8分
竣工 1988年11月 構造 RC
規模 地上4階 耐震基準 新耐震基準
床構造 - 空調設備 個別空調
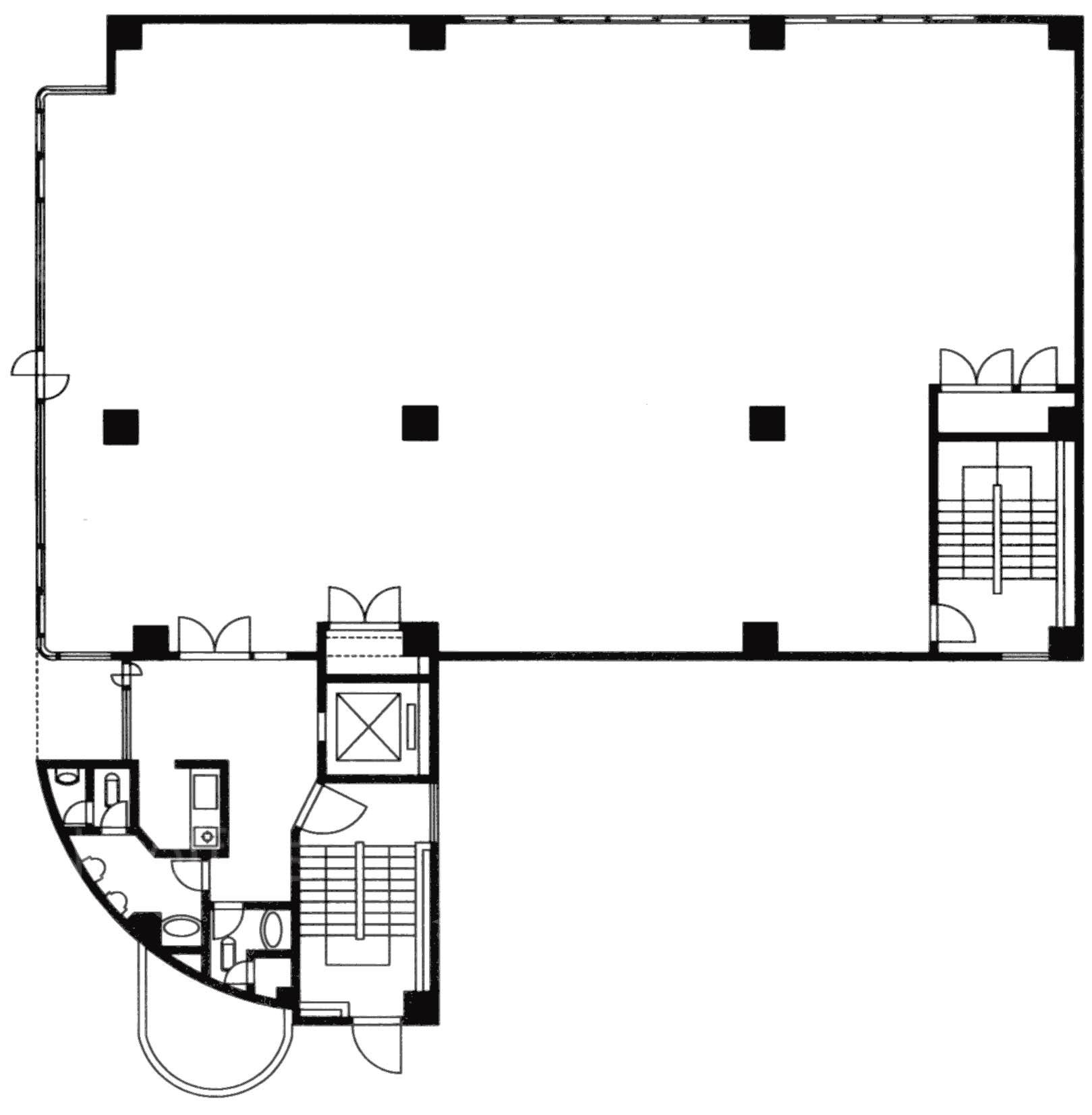
天井高 - 基準階面積 89.17坪(294.78m2)
コンセント容量 - 施工会社

最新の募集状況や類似物件については、
こちらにお問い合わせください。

サイテックビル 外観

外観

  • サイテックビル エントランス写真

    エントランス

  • 基準階

    基準階

内見やお見積りなどの各種お問い合わせ

全物件
仲介手数料無料
仲介から
入居工事まで
ワンストップで対応
経験豊富なスタッフが
スピード感をもって
対応

周辺での似た条件の物件

非公開物件 多数あり!

お問い合わせフォーム