takeofficeなら掲載物件の仲介手数料は無料です

目白カルチャービル

住所 東京都豊島区目白2-2-1
交通 都電荒川線鬼子母神前」 徒歩4分
都電荒川線学習院下」 徒歩6分
JR山手線目白」 徒歩8分
竣工 1973年05月 構造 -
規模 地上6階, 地下1階 耐震基準 旧耐震基準
床構造 フリーアクセス 50mm 空調設備 個別空調
天井高 2450mm 基準階面積 63.23坪(209.02m2)
コンセント容量 - 施工会社

最新の募集状況や類似物件については、
こちらにお問い合わせください。

目白カルチャービル 外観

外観

  • NOW PRINTING

    エントランス

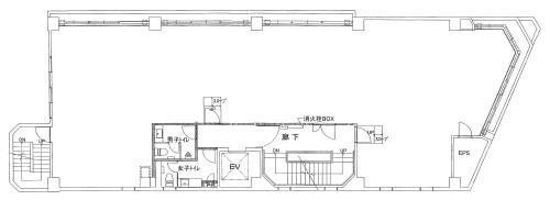
  • 基準階(2~5F)

    基準階(2~5F)

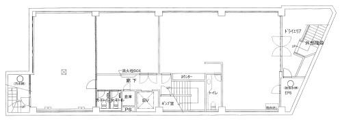
  • 1F

    1F

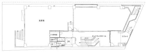
  • B1F

    B1F

内見やお見積りなどの各種お問い合わせ

全物件
仲介手数料無料
仲介から
入居工事まで
ワンストップで対応
経験豊富なスタッフが
スピード感をもって
対応

周辺での似た条件の物件

非公開物件 多数あり!

お問い合わせフォーム