takeofficeなら掲載物件の仲介手数料は無料です

池袋ツルミビル

住所 東京都豊島区西池袋2-39-6
交通 JR山手線池袋」 徒歩5分
東上線池袋」 徒歩5分
池袋線池袋」 徒歩5分
竣工 1992年12月 構造 SRC
規模 地上8階, 地下1階 耐震基準 新耐震基準
床構造 - 空調設備 個別空調
天井高 - 基準階面積 58坪(194m2)
コンセント容量 - 施工会社

最新の募集状況や類似物件については、
こちらにお問い合わせください。

池袋ツルミビル 外観

外観

  • 池袋ツルミビル エントランス写真

    エントランス

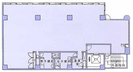
  • 基準階(3~4F)

    基準階(3~4F)

  • 1F

    1F

  • 2F

    2F

  • 8F

    8F

  • B1F

    B1F

内見やお見積りなどの各種お問い合わせ

全物件
仲介手数料無料
仲介から
入居工事まで
ワンストップで対応
経験豊富なスタッフが
スピード感をもって
対応

周辺での似た条件の物件

非公開物件 多数あり!

お問い合わせフォーム