takeofficeなら掲載物件の仲介手数料は無料です

池袋ウエストビル

住所 東京都豊島区西池袋3-31-8
交通 JR山手線池袋」 徒歩5分
東京メトロ丸ノ内線池袋」 徒歩5分
池袋線池袋」 徒歩5分
竣工 1973年06月 構造 RC
規模 地上6階 耐震基準 旧耐震基準
床構造 フリーアクセス 30mm 空調設備 個別空調
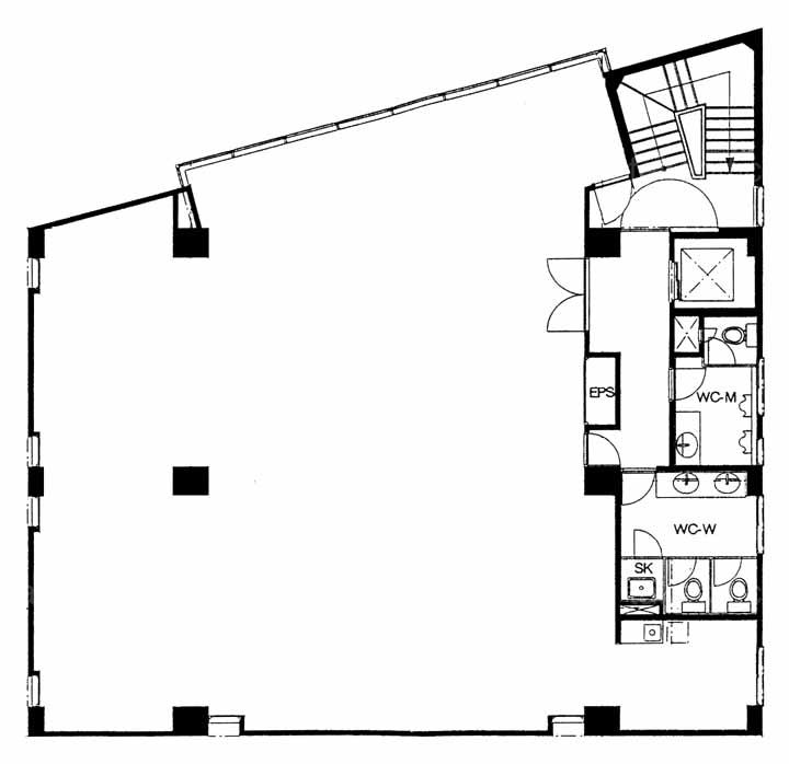
天井高 - 基準階面積 57.17坪(188.99m2)
コンセント容量 - 施工会社

最新の募集状況や類似物件については、
こちらにお問い合わせください。

池袋ウエストビル 外観

外観

  • 池袋ウエストビル エントランス写真

    エントランス

  • 基準階

    基準階

内見やお見積りなどの各種お問い合わせ

全物件
仲介手数料無料
仲介から
入居工事まで
ワンストップで対応
経験豊富なスタッフが
スピード感をもって
対応

周辺での似た条件の物件

非公開物件 多数あり!

お問い合わせフォーム