takeofficeなら掲載物件の仲介手数料は無料です

オンダビル

住所 東京都豊島区池袋2-47-5
交通 JR山手線池袋」 徒歩5分
東京メトロ有楽町線東池袋」 徒歩14分
東上線北池袋」 徒歩16分
竣工 1989年06月 構造 SRC
規模 地上10階, 地下1階 耐震基準 新耐震基準
床構造 3WAY 空調設備 個別空調
天井高 2450mm 基準階面積 66.26坪(219.04m2)
コンセント容量 - 施工会社

最新の募集状況や類似物件については、
こちらにお問い合わせください。

オンダビル 外観

外観

  • オンダビル エントランス写真

    エントランス

  • 基準階

    基準階

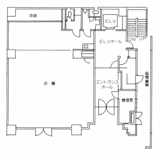
  • 1F

    1F

  • 8F

    8F

  • 9F

    9F

内見やお見積りなどの各種お問い合わせ

全物件
仲介手数料無料
仲介から
入居工事まで
ワンストップで対応
経験豊富なスタッフが
スピード感をもって
対応

周辺での似た条件の物件

非公開物件 多数あり!

お問い合わせフォーム