takeofficeなら掲載物件の仲介手数料は無料です

ベルテックス

住所 東京都北区滝野川7-2-13
交通 JR埼京線板橋」 徒歩1分
都営三田線新板橋」 徒歩4分
竣工 1992年04月 構造 SRC
規模 地上7階, 地下2階 耐震基準 新耐震基準
床構造 フリーアクセス 空調設備 個別空調
天井高 2500mm 基準階面積 --
コンセント容量 - 施工会社

最新の募集状況や類似物件については、
こちらにお問い合わせください。

ベルテックス 外観

外観

  • ベルテックス エントランス写真

    エントランス

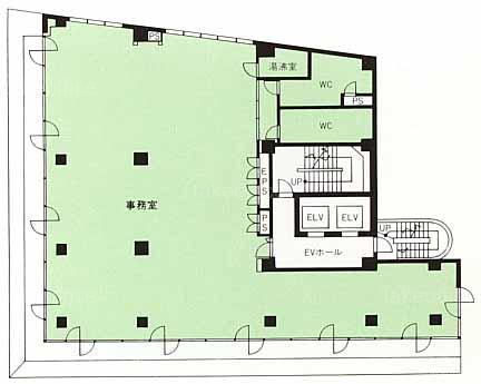
  • 基準階(2~4F)

    基準階(2~4F)

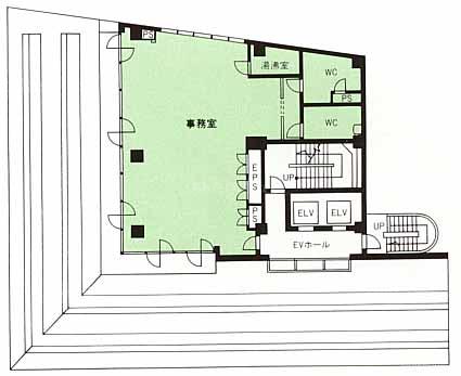
  • 1F

    1F

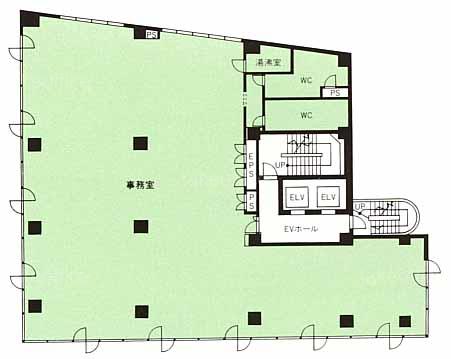
  • 5F

    5F

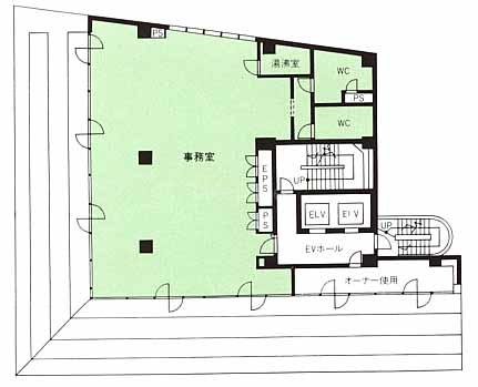
  • 6F

    6F

  • 7F

    7F

内見やお見積りなどの各種お問い合わせ

全物件
仲介手数料無料
仲介から
入居工事まで
ワンストップで対応
経験豊富なスタッフが
スピード感をもって
対応

周辺での似た条件の物件

非公開物件 多数あり!

お問い合わせフォーム