takeofficeなら掲載物件の仲介手数料は無料です

秋山ビル

住所 東京都荒川区西日暮里2-29-6
交通 JR山手線日暮里」 徒歩3分
竣工 1971年12月 構造 鉄骨造
規模 地上8階 耐震基準 旧耐震基準
床構造 - 空調設備 個別空調
天井高 - 基準階面積 --
コンセント容量 - 施工会社

最新の募集状況や類似物件については、
こちらにお問い合わせください。

秋山ビル 外観

外観

  • 秋山ビル エントランス写真

    エントランス

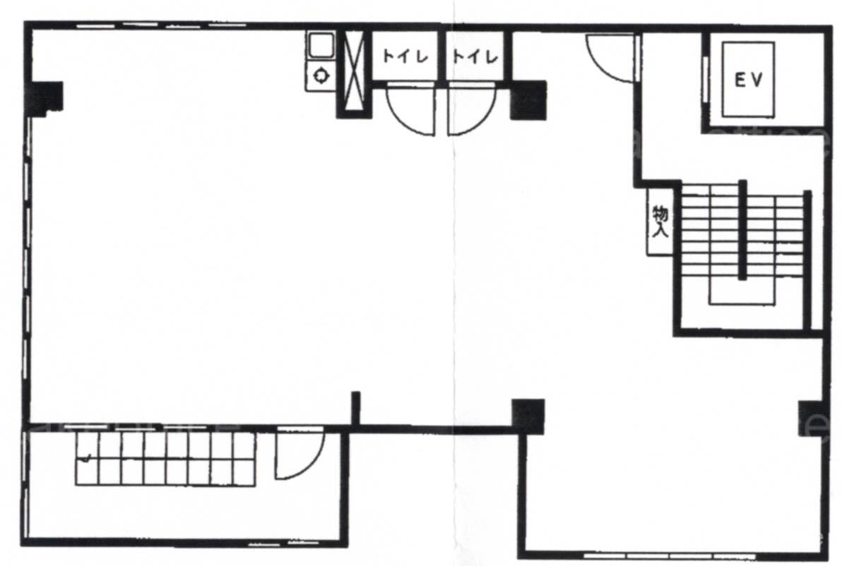
  • 3F

    3F

内見やお見積りなどの各種お問い合わせ

全物件
仲介手数料無料
仲介から
入居工事まで
ワンストップで対応
経験豊富なスタッフが
スピード感をもって
対応

周辺での似た条件の物件

非公開物件 多数あり!

お問い合わせフォーム