takeofficeなら掲載物件の仲介手数料は無料です

板橋産連会館

住所 東京都板橋区仲宿54-10
交通 都営三田線板橋区役所前」 徒歩5分
竣工 1972年 月 構造 RC
規模 地上5階 耐震基準 旧耐震基準
床構造 - 空調設備 個別空調
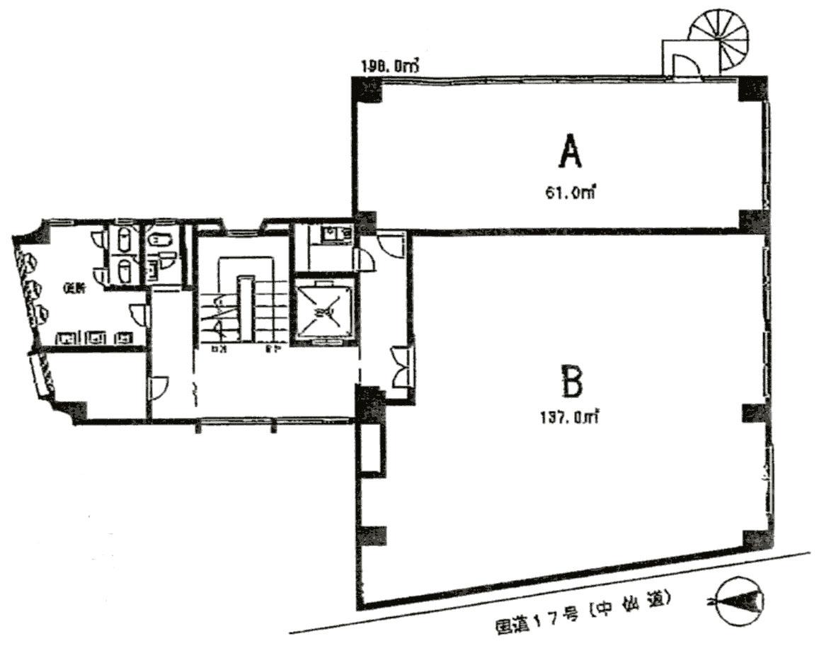
天井高 - 基準階面積 59.9坪(198m2)
コンセント容量 - 施工会社

最新の募集状況や類似物件については、
こちらにお問い合わせください。

板橋産連会館 外観

外観

  • 板橋産連会館 エントランス写真

    エントランス

内見やお見積りなどの各種お問い合わせ

全物件
仲介手数料無料
仲介から
入居工事まで
ワンストップで対応
経験豊富なスタッフが
スピード感をもって
対応
非公開物件 多数あり!

お問い合わせフォーム