takeofficeなら掲載物件の仲介手数料は無料です

シティプラザ西台

住所 東京都板橋区高島平1-79-12
交通 都営三田線西台」 徒歩3分
都営三田線蓮根」 徒歩9分
都営三田線高島平」 徒歩13分
竣工 1992年 月 構造 SRC
規模 地上10階, 地下0階 耐震基準 -
床構造 - 空調設備 -
天井高 - 基準階面積 127.35坪(420.99m2)
コンセント容量 - 施工会社

最新の募集状況や類似物件については、
こちらにお問い合わせください。

NOW PRINTING

外観

  • NOW PRINTING

    エントランス

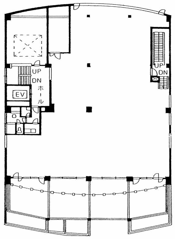
  • 2F

    2F

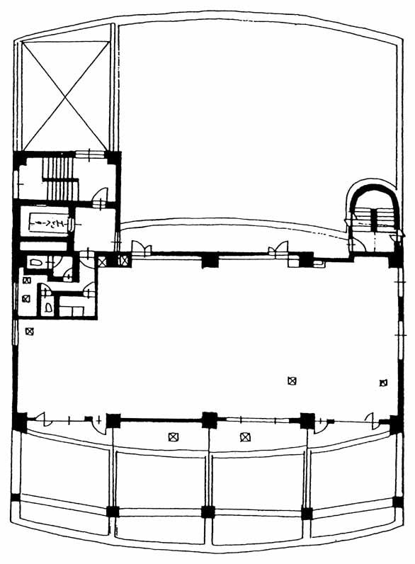
  • 3F

    3F

内見やお見積りなどの各種お問い合わせ

全物件
仲介手数料無料
仲介から
入居工事まで
ワンストップで対応
経験豊富なスタッフが
スピード感をもって
対応

周辺での似た条件の物件

非公開物件 多数あり!

お問い合わせフォーム