takeofficeなら掲載物件の仲介手数料は無料です

八王子ファーストスクエア

住所 東京都八王子市明神町3-20-6
交通 JR中央線八王子」 徒歩4分
竣工 1996年07月 構造 鉄骨造+SRC
規模 地上12階, 地下1階 耐震基準 新耐震基準
床構造 - 空調設備 セントラル空調
天井高 - 基準階面積 334.97坪(1107.34m2)
コンセント容量 - 施工会社

最新の募集状況や類似物件については、
こちらにお問い合わせください。

八王子ファーストスクエア 外観

外観

  • NOW PRINTING

    エントランス

  • 基準階

    基準階

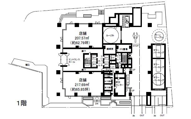
  • 1F

    1F

建物パンフレット

建物パンフレットは作成時点のものであり、また計画段階のものも含まれる為、実際とは異なる場合がございます。

内見やお見積りなどの各種お問い合わせ

全物件
仲介手数料無料
仲介から
入居工事まで
ワンストップで対応
経験豊富なスタッフが
スピード感をもって
対応

周辺での似た条件の物件

非公開物件 多数あり!

お問い合わせフォーム