takeofficeなら掲載物件の仲介手数料は無料です

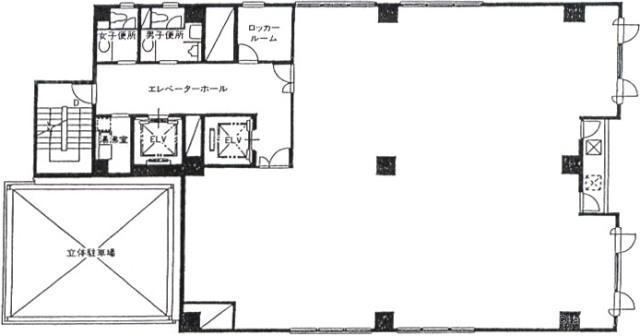
関内JSビル

住所 神奈川県横浜市中区山下町207-2
交通 JR根岸線関内」 徒歩6分
竣工 1990年10月 構造 SRC
規模 地上10階, 地下0階 耐震基準 新耐震基準
床構造 - 空調設備 個別空調
天井高 2500mm 基準階面積 --
コンセント容量 - 施工会社

最新の募集状況や類似物件については、
こちらにお問い合わせください。

関内JSビル 外観

外観

  • 関内JSビル エントランス写真

    エントランス

内見やお見積りなどの各種お問い合わせ

全物件
仲介手数料無料
仲介から
入居工事まで
ワンストップで対応
経験豊富なスタッフが
スピード感をもって
対応

周辺での似た条件の物件

非公開物件 多数あり!

お問い合わせフォーム