takeofficeなら掲載物件の仲介手数料は無料です

ICON関内

住所 神奈川県横浜市中区尾上町1-6
交通 JR横浜線関内」 徒歩2分
みなとみらい線日本大通り」 徒歩7分
竣工 1983年07月 構造 SRC
規模 地上10階, 地下1階 耐震基準 新耐震基準
床構造 フリーアクセス 40mm 空調設備 個別空調
天井高 2470mm 基準階面積 --
コンセント容量 - 施工会社

最新の募集状況や類似物件については、
こちらにお問い合わせください。

ICON関内 外観

外観

  • NOW PRINTING

    エントランス

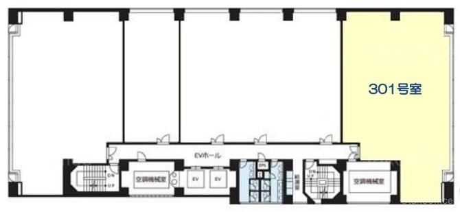
  • 3F

    3F

内見やお見積りなどの各種お問い合わせ

全物件
仲介手数料無料
仲介から
入居工事まで
ワンストップで対応
経験豊富なスタッフが
スピード感をもって
対応

周辺での似た条件の物件

非公開物件 多数あり!

お問い合わせフォーム