takeofficeなら掲載物件の仲介手数料は無料です

川崎野村證券ビル

住所 神奈川県川崎市川崎区東田町5-2
交通 JR京浜東北線川崎」 徒歩6分
京浜急行京急川崎」 徒歩6分
竣工 1960年04月 構造 RC
規模 地上5階, 地下1階 耐震基準 旧耐震基準
床構造 - 空調設備 個別空調
天井高 2500mm 基準階面積 119.62坪(395.44m2)
コンセント容量 45VA/m2 施工会社

最新の募集状況や類似物件については、
こちらにお問い合わせください。

川崎野村證券ビル 外観

外観

  • NOW PRINTING

    エントランス

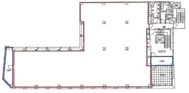
  • 基準階

    基準階

内見やお見積りなどの各種お問い合わせ

全物件
仲介手数料無料
仲介から
入居工事まで
ワンストップで対応
経験豊富なスタッフが
スピード感をもって
対応

周辺での似た条件の物件

非公開物件 多数あり!

お問い合わせフォーム