takeofficeなら掲載物件の仲介手数料は無料です

川崎室町ビル

住所 神奈川県川崎市川崎区砂子1-8-1
交通 JR東海道線川崎」 徒歩3分
竣工 2016年09月 構造 SRC
規模 地上11階 耐震基準 新耐震基準
床構造 フリーアクセス 100mm 空調設備 個別空調
天井高 2800mm 基準階面積 123.7坪(408.93m2)
コンセント容量 50VA/m2 施工会社

最新の募集状況や類似物件については、
こちらにお問い合わせください。

川崎室町ビル 外観

外観

  • 川崎室町ビル エントランス写真

    エントランス

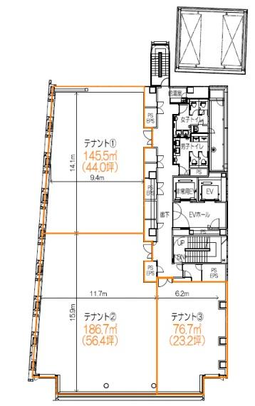
  • 基準階(6~10F)

    基準階(6~10F)

  • 11F

    11F

内見やお見積りなどの各種お問い合わせ

全物件
仲介手数料無料
仲介から
入居工事まで
ワンストップで対応
経験豊富なスタッフが
スピード感をもって
対応

周辺での似た条件の物件

非公開物件 多数あり!

お問い合わせフォーム