takeofficeなら掲載物件の仲介手数料は無料です

平和不動産桜通ビル

住所 愛知県名古屋市中区錦1-3-7
交通 桜通線丸の内」 徒歩4分
桜通線国際センター」 徒歩6分
竣工 1986年05月 構造 SRC
規模 地上9階, 地下2階 耐震基準 新耐震基準
床構造 フリーアクセス 40mm 空調設備 個別空調
天井高 2445mm 基準階面積 300.63坪(993.82m2)
コンセント容量 40VA/m2 施工会社 清水建設

最新の募集状況や類似物件については、
こちらにお問い合わせください。

平和不動産桜通ビル 外観

外観

  • 平和不動産桜通ビル エントランス写真

    エントランス

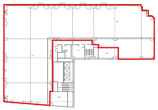
  • 基準階

    基準階

内見やお見積りなどの各種お問い合わせ

全物件
仲介手数料無料
仲介から
入居工事まで
ワンストップで対応
経験豊富なスタッフが
スピード感をもって
対応

※「ご相談」と記載されている項目について
賃貸人が募集賃料条件を守秘義務の関係から明示していない場合に、【ご相談】と記載しております。
フリーレント(賃料免除)期間、使用面積、入居時期、テナント様の与信などによりご提示できる条件が若干変化いたします。
お手数ですが、詳細につきましては、上記よりお問い合わせください。

周辺での似た条件の物件

非公開物件 多数あり!

お問い合わせフォーム