takeofficeなら掲載物件の仲介手数料は無料です

アーバンエース東天満ビル

住所 大阪府大阪市北区東天満1-1-19
交通 谷町線南森町」 徒歩10分
JR東西線大阪天満宮」 徒歩10分
京阪本線天満橋」 徒歩10分
竣工 1991年12月 構造 鉄骨造
規模 地上10階 耐震基準 新耐震基準
床構造 フリーアクセス 100mm 空調設備 個別空調
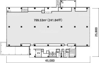
天井高 2800mm 基準階面積 241.84坪(799.47m2)
コンセント容量 50VA/m2 施工会社

最新の募集状況や類似物件については、
こちらにお問い合わせください。

アーバンエース東天満ビル 外観

外観

  • NOW PRINTING

    エントランス

  • 基準階

    基準階

内見やお見積りなどの各種お問い合わせ

全物件
仲介手数料無料
仲介から
入居工事まで
ワンストップで対応
経験豊富なスタッフが
スピード感をもって
対応

周辺での似た条件の物件

非公開物件 多数あり!

お問い合わせフォーム