takeofficeなら掲載物件の仲介手数料は無料です

日本生命梅田ビル

住所 大阪府大阪市北区堂山町3-3
交通 谷町線東梅田」 徒歩4分
御堂筋線梅田」 徒歩6分
東海道本線大阪」 徒歩9分
竣工 1977年 月 構造 SRC
規模 地上11階, 地下2階 耐震基準 -
床構造 フリーアクセス 50mm 空調設備 ゾーン別+個別
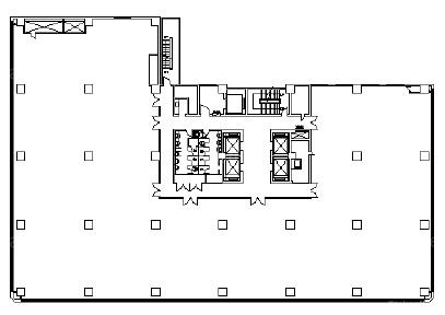
天井高 2500mm 基準階面積 350坪(1157.02m2)
コンセント容量 - 施工会社

最新の募集状況や類似物件については、
こちらにお問い合わせください。

日本生命梅田ビル
 外観

外観

  • NOW PRINTING

    エントランス

  • 基準階

    基準階

内見やお見積りなどの各種お問い合わせ

全物件
仲介手数料無料
仲介から
入居工事まで
ワンストップで対応
経験豊富なスタッフが
スピード感をもって
対応

周辺での似た条件の物件

非公開物件 多数あり!

お問い合わせフォーム