takeofficeなら掲載物件の仲介手数料は無料です

アプローズタワー

住所 大阪府大阪市北区茶屋町19-19
交通 御堂筋線梅田」 徒歩5分
御堂筋線中津」 徒歩4分
竣工 1992年11月 構造 鉄骨造+SRC
規模 地上34階, 地下3階 耐震基準 新耐震基準
床構造 フリーアクセス 68mm 空調設備 個別空調
天井高 2750mm 基準階面積 368.54坪(1218.3m2)
コンセント容量 - 施工会社

最新の募集状況や類似物件については、
こちらにお問い合わせください。

アプローズタワー 外観

外観

  • NOW PRINTING

    エントランス

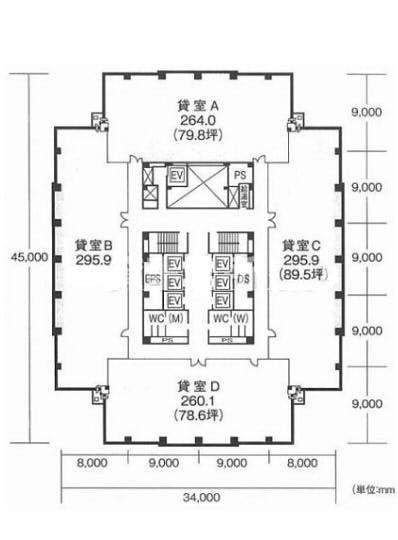
  • 基準階

    基準階

内見やお見積りなどの各種お問い合わせ

全物件
仲介手数料無料
仲介から
入居工事まで
ワンストップで対応
経験豊富なスタッフが
スピード感をもって
対応

周辺での似た条件の物件

非公開物件 多数あり!

お問い合わせフォーム