takeofficeなら掲載物件の仲介手数料は無料です

いちご博多駅東3丁目ビル

住所 福岡県福岡市博多区博多駅東3-14-18
交通 -
竣工 1997年11月 構造 鉄骨造
規模 地上9階, 地下1階 耐震基準 新耐震基準
床構造 フリーアクセス 40mm 空調設備 個別空調
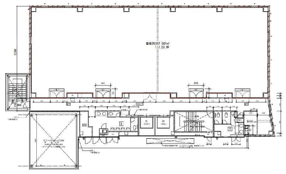
天井高 2600mm 基準階面積 117.23坪(387.54m2)
コンセント容量 - 施工会社 竹中工務店
坪面積 用途 賃料 坪単価 共益費 入居可能日
6 67.75坪 事務所 相談 相談 相談
7 117.23坪 事務所 相談 相談 相談
いちご博多駅東3丁目ビル 外観

外観

  • いちご博多駅東3丁目ビル エントランス写真

    エントランス

  • 基準階

    基準階

内見やお見積りなどの各種お問い合わせ

全物件
仲介手数料無料
仲介から
入居工事まで
ワンストップで対応
経験豊富なスタッフが
スピード感をもって
対応

※「ご相談」と記載されている項目について
賃貸人が募集賃料条件を守秘義務の関係から明示していない場合に、【ご相談】と記載しております。
フリーレント(賃料免除)期間、使用面積、入居時期、テナント様の与信などによりご提示できる条件が若干変化いたします。
お手数ですが、詳細につきましては、上記よりお問い合わせください。

周辺での似た条件の物件

非公開物件 多数あり!

お問い合わせフォーム